L’agence STG Immobilier vous offre l’opportunité de devenir propriétaire d’une villa de plain pied située à Trova sur la commune d’Alata.
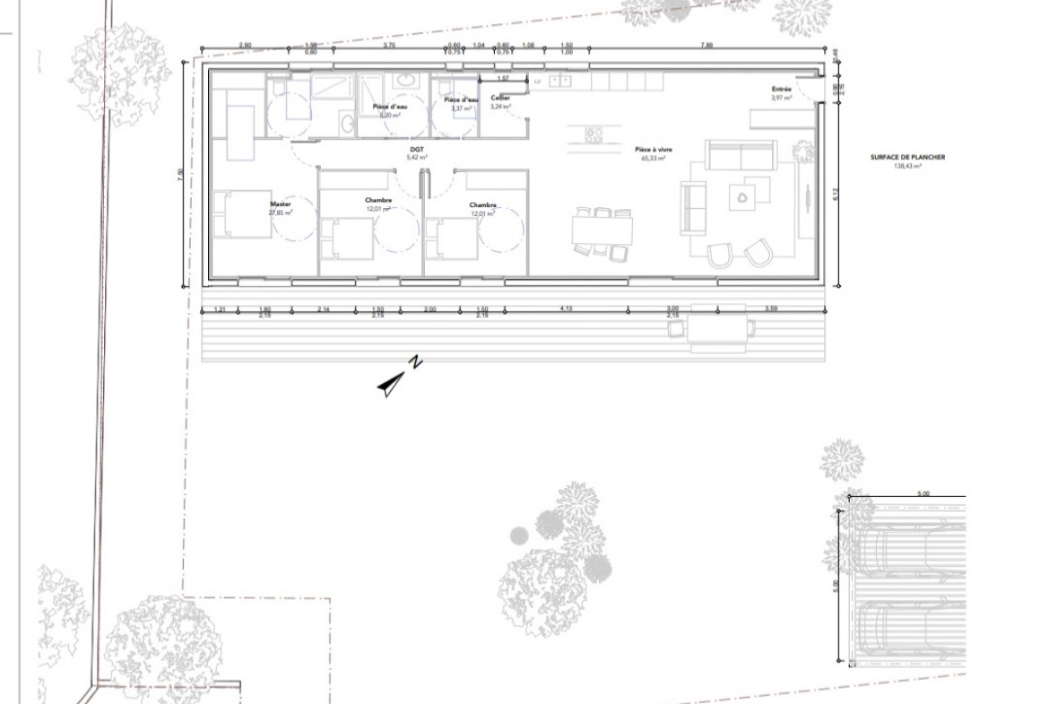
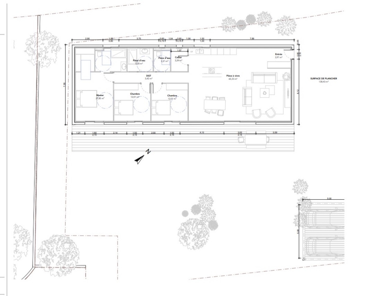
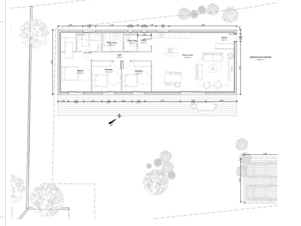
Cette maison de 139m2 se compose de la manière suivante:
-3 chambres dont une master de 27,85m2
-2 salles d’eau
-1 WC séparé
-1 cellier
-et un salon cuisine de plus de 65m2
Edifiée sur une parcelle de 1366m2 .
Deux possibilités s’offrent à vous, une acquisition hors d’eau hors d’air déjà achevé (avec crépis, clôture, VRD, portail et goutières) a 490000€ ou une acquisition clé en main à 670000€.
Pour plus de renseignements n’hesitez pas à me contacter.
Nunzia VESPERINI
0626901753
nv@stgimmobilier.com








