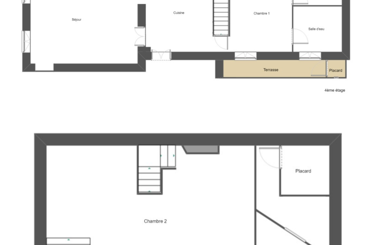
L’agence STG IMMOBILIER, spécialiste de l’immobilier à Ajaccio est heureuse de vous présenter à la vente ce magnifique appartement de caractère de type 3 de 98 m² habitables rénové avec des matériaux de qualité situé en centre ville d’Ajaccio à proximité de la gare et du tribunal.
Au 4ème et dernier étage sans ascenseur, cet appartement se compose d’une cuisine équipée de 16 m², d’un séjour de 28 m² avec cheminée fonctionnelle, d’un dégagement desservant, avec une buanderie attenante de 4,10 m², une chambre de 13 m² et une grande salle d’eau de 6,60 m² et d’un balcon. À l’étage, une grande chambre de 30 m² avec rangements (possibilité de créer une 3ème chambre et une salle d’eau).
Prestations du bien : murs en pierres, tomettes, 3 climatisation neuves, cheminée fonctionnelle, velux solaire dans la chambre à l’étage, béton ciré dans la cuisine, isolation phonique plafond cuisine, double vitrage PVC, persiennes bois, cuisine équipée.
Charges de copropriété : 216€ / trimestre // Taxe foncière : 1071€
Nombre de lots dans la copropriété : 15 // Procédure en cours.
Estimation annuelle des coûts d’énergie du logement estimé entre : 910 euros et 1280 euros
Pour plus d’informations ou pour organiser une visite, n’hésitez pas à contacter Angela NUNZI // 06 37 42 08 12 // angela@stgimmobilier.com
Les informations sur les risques auxquels ce bien est exposé sont disponibles sur le site Géorisques www.georisques.gouv.fr



























