L’agence STG immobilier, spécialiste de l’immobilier en corse et à Ajaccio vous propose en exclusivité à la vente cette propriété familiale à Porticcio à deux pas de la plage de Marina Viva ✨
Située sur la très recherchée rive sud d’Ajaccio, à Porticcio, cette propriété bénéficie d’un emplacement privilégié, à proximité immédiate de la plage de Marina Viva, des commerces et des commodités et à 10 minutes de l’aéroport d’Ajaccio.
Cette propriété construite au début des années 70 au sein d’un lotissement est édifiée sur un terrain de 1930 m² au sein d’un environnement calme.
Fait rare, elle se compose de deux habitations principales ayant chacune un accès indépendant,
L’ensemble offre un fort potentiel, aussi bien pour une grande famille que pour un projet de rendement saisonnier, dans l’un des secteurs les plus prisés du golfe d’Ajaccio.
📍 Emplacement rare
🏡 Deux habitations indépendantes
Entièrement d’origine elle nécessitera d’importants travaux de rénovation.
Voici le détail de cette bâtisse :
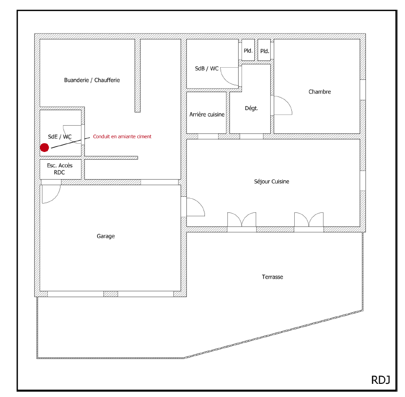
1/ Une première habitation sur deux niveaux avec accès indépendant de type F4 + F2 d’une surface totale habitable de 192 m² composée comme suit :
A/ De plan pied une habitation de type F4 d’une surface de 127 m² composée comme suit:
– Un hall d’entrée, un 1er dégagement desservant une chambre avec placard de 11.5m² et une salle d’eau +WC de 4.8 m², un séjour avec cheminée de 31.7 m², une cuisine indépendante de 13 m², un 2ème dégagement desservant deux chambres avec placards de 14.5 et 19.3m², une salle de bains de 9.6 m² et un WC avec lave mains de 4.8m².
-Une grande terrasse face à la mer avec un petit BBQ de 49.7 m².
-Cette habitation communique par un escalier intérieur avec un sous-sol composé d’un garage double avec deux entrées d’une surface de 31 m², + une partie aménagée (buanderie/chaufferie) avec salle d’eau +WC de 32 m² environ et un vide sanitaire.
B/ En rez-de-jardin une habitation de type F2 de 65 m² attenant au double garage composée d’une pièce de vie avec coin cuisine de 32.6 m², un dégagement nuit, une chambre de 18 m² et une salle de bains +WC de 6.7m².
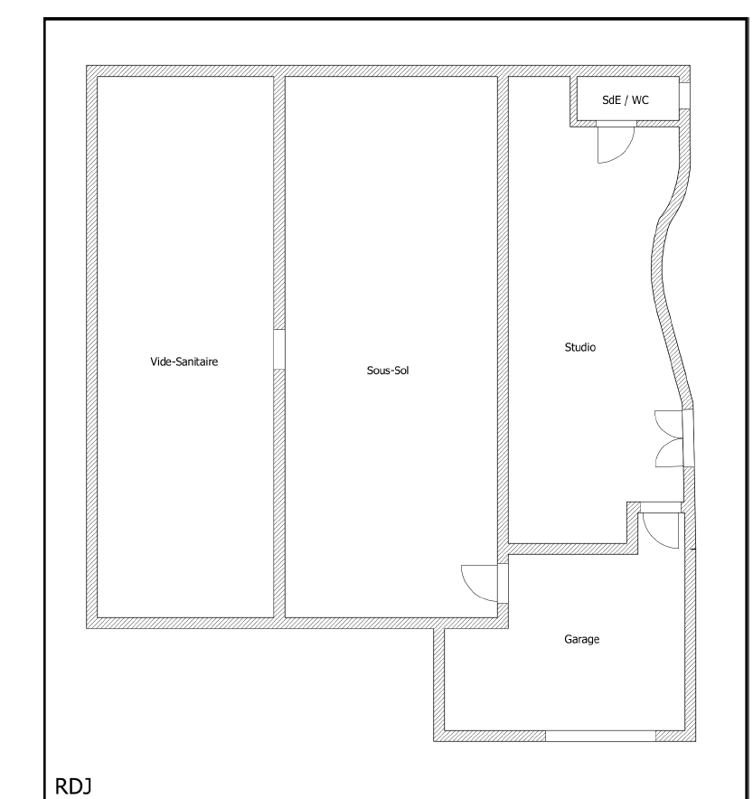
2/ Une deuxième habitation sur deux niveaux avec accès indépendant de type F4 + studio d’une surface habitable de 123 m² composée comme suit :
A/ De plain-pied une habitation de type F4 d’une surface habitable de 94 m² composée comme suit:
-Un hall d’entrée, un dégagement desservant un séjour de 20.7 m², une 1ère chambre de 11m², un coin salle à manger de 8 m², une cuisine de 9.4 m², un WC indépendant, une salle de bains de 4.4 m² et deux autres chambres avec placard de 14 m² chacune.
-Une grande terrasse face à la mer avec un petit BBQ de 45 m².
B/ En rez-de-jardin un garage de 16.5 m², un sous-sol de 46 m² communiquant avec une habitation de type studio de 29.5 m² avec coin cuisine et salle d’eau + WC et jouissant d’un petit espace extérieur aménagé avec accès indépendant.
Les deux habitations F4 étaient autrefois séparés par un mur sur la terrasse.
Un bien rare sur le marché, à découvrir sans tarder.
Nombre de lots au sein de la copropriété : 38
Charges de copropriété : 110 euros/trimestre
Montant taxe foncière : 4484 euros
Pas de procédure en cours.
Pour plus d’informations, contactez nous au 06 18 82 13 74
Les informations sur les risques auxquels ce bien est exposé sont disponibles sur le site Géorisques : www.georisques.gouv.fr
Estimation de coûts annuels d’énergie du logement estimés entre 2 553 € et 3 453 €.




















































