L’agence STG IMMOBILIER, spécialiste de l’immobilier à Ajaccio, a le plaisir de vous proposer ce charmant appartement 2 pièces idéalement situé au coeur du centre-ville d’Ajaccio, rue Fesch.
Érigé en 1770, cet immeuble au charme intemporel séduit par son histoire et son authenticité, offrant un cadre unique où le cachet de l’ancien rencontre le confort moderne.
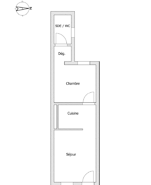
Au 2ème étage sur 3 sans ascenseur d’un immeuble sécurisé par digicode, cet appartement de 33,83m² bénéficie d’un emplacement idéal et d’une exposition EST.
Il est agencé de la manière suivante : un séjour avec une cuisine semi-ouverte, une chambre avec dressing, un espace buanderie et une salle d’eau avec WC.
Prestations intérieures :
- Cuisine équipée
- Chauffe-eau cumulus
- Revêtements : parquet stratifié / carrelage
- Menuiseries double vitrage PVC
- Climatisation réversible
Charges de copropriété : 110,38€/trimestre.
Taxe foncière : 548€
Idéal primo-accédant ou investisseur : une belle opportunité à ne pas manquer
Pour plus d’informations, contactez Lou Bousquet au 06 40 12 48 21 ou par courriel : lb@stgimmobilier.com
Les informations sur les risques auxquels ce bien est exposé sont disponibles sur le site Géorisques www.georisques.gouv.fr







