L’agence STG Immobilier Albert 1er, spécialiste de l’immobilier à Ajaccio, est heureuse de vous proposer à la vente en exclusivité cet appartement de type T3, situé avenue Maréchal Lyautey, au sein d’une résidence sécurisée.
Situé au 1er étage, accessible par ascenseur avec quelques marches (demi-pallier), cet appartement traversant bénéficie d’une exposition SUD, lui offrant une belle luminosité tout au long de la journée.
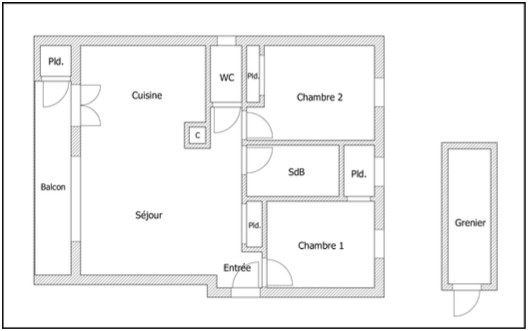
D’une superficie Carrez de 67,15m², il se compose comme suit : un séjour avec cuisine ouverte équipée de 32,14m², une première chambre de 9,35m², un WC indépendant, une salle de bain de 4,52m², une deuxième chambre de 11,37m².
Un balcon de 7,80m², accessible depuis le séjour et la cuisine, vient compléter l’espace de vie.
Un grenier de 5,46m² complète également ce lot.
Prestations : Cumulus, climatisation réversible dans le salon, menuiseries PVC double vitrage, volets roulants électriques, carrelage, digicode, parking.
Taxe foncière : 1 330€
Charges de copropriété : 300€ / trimestre
Pas de procédure en cours.
Nombre de lots : 169.
Les informations sur les risques auxquels ce bien est exposé sont disponibles sur le site Géorisques : www.georisques.gouv.fr
Estimation annuelle des coûts d’énergie du logement estimé entre : 694 euros et 940 euros.
Vous souhaitez plus de renseignements ? Contactez Maxime CANAVAGGIO au 06 31 86 68 58 ou mc@stgimmobilier.com













